一、 應用、用途
鋼便橋一般主要應用於工區內的施工便道(用於跨越河流、山谷或其他障礙物而建造的結構物),方便施工車輛能在上面行走及作業所搭設的臨時鋼便橋(圖 1)或既有橋樑興建中供民眾通行之之臨時替代道路。
鋼構台則為重型機具於工區施工時之臨時平台,一般最常見於都會區進行深開挖工程,當工區面積過大,就必須要做施工構台(圖 2),以利車輛進出、土方清運、材料吊放及灌漿等工項,或者常用於水上作業之各工項施工平台
上述兩者皆屬臨時性的假設工程。
圖 1 工區跨河用便道
圖 2 深基礎開挖之施工構台
圖 3 位於河流出海口橋墩施工之臨時性施工構台
二、 構成介紹
構台與鋼便橋的結構形式相同,也與一般建築結構物的型態類似。其主要組成的構件分別有
(1) 構台柱
(2) 構台樑(大樑、小樑,又稱主樑、副樑)
(3) 覆工板
(4) 繫樑
(5) 繫稈(Bracing)
前三項主要結構主要扮演載重之力量傳遞,其力傳遞方式為上方施工載重à覆工板à小(副)樑à大(主)樑à構台柱,最終傳至下方土壤承載層。若構台柱的無支撐長度過長,則中間必須再架設多層繫樑,以避免構台柱發生挫屈(Buckling)。
構台邊斜撐(俗稱螃蟹腳)及交叉繫桿(一般採角鋼),目的在穩定構台整體的搖晃程度,抑制側向變位。
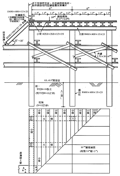
構台之構造平面與剖面示意圖如下所示。
圖 4 構台之構造(圖上尺寸僅供參考,摘自營建工程防災技術. 基礎施工篇 / 沈茂松撰, 2001)
三、 設計應注意事項
進行結構設計時,首先應先確認總體施工載重的大小及配置以作為分析設計時的依據,載重包含大型車輛的自重、工作時的載重(吊裝重)及車輛的衝擊載重。應考慮各載重在最大作用力的情況下,所產生組合載重之最大作用應力,並依此作相關檢核。
主要結構皆需進行結構計算,確認構件的容許應力大於工作應力,符合相關規範規定之內容,在載重未超出安全係數的容許範圍內,不致產生結構性的破壞。構台及鋼便橋的主要構件包含前述所提到的構台柱、構台樑(大、小樑)以及覆工板。
特別是構台柱之應力分析與樁的乘載力(入土深度分析)在工程施工時最為重要。配合現地的土壤鑽探資料及技師的工程經驗判斷,在土壤力學的基礎架構下,加上規範明訂之安全係數,確實評估土壤所能提供的容許強度。構台柱的挫屈(Buckling)嚴重將導致整個構台結構的潰敗,於設計上需審慎考量。此外,為防止側向變位過大與搖晃,則應考慮加設斜撐及拉桿,以增加構台整體的穩定度。
四、 結構分析
不論是施工構台或是鋼便橋皆屬鋼結構,各構件應符合「鋼結構設計規範」的內容。我國目前並存著兩種鋼結構設計方法:
(1) 容許應力設計法(ASD)
(2) 極限設計法(LRFD)
而業界則是採容許應力法(ASD)為大宗。
結構分析計算需檢核的項目如下:
(1) 覆工板僅需檢核彎曲應力及剪應力是否小於容許應力值
(2) 構台樑及構台柱需再考慮樑柱壓(拉)彎互制效應的強度檢核,包含降伏性準則(yielding criterion)、穩定性準則(stability criterion)以及小軸力準則(small axial compression criterion),詳見圖 5。
(3) 斜撐及拉桿目的在減少構台搖晃程度,施做與否不影響構台整體結構是否失效,故一般毋須進行結構檢核。
圖 5 容許應力設計法(ASD)之互制圖
結構分析時的計算方式,需依據各構件之實際受力狀況進行(圖 6)。可直接將單位寬度的覆工板及構台樑以簡支樑的形式作計算,載重計算則一律取構件中所可能產生最大的應力計算。從結構設計的觀點來看,以構件中最大的應力計算,便可滿足規範規定且偏保守。構台柱則需考慮上方所有重量,包含構件自重,除了檢核本身的結構強度之外,尚需評估土壤的乘載力,若土壤過於軟弱無法提供足夠的強度時,則需增加構台柱貫入長度或進行地質改良。
圖 6 各項主要構件受力圖
在構台的設計上,本公司也利用結構分析軟體SAP2000進行相關結構分析,依照設計圖面將整個構台或鋼便橋建立結構模型,進行三維度的總體分析,除了能夠清楚地了解力的傳遞狀況,包含各單一構件的彎矩、剪力、軸力、扭力等,除檢核各構件尺寸是否能符合相關規範,確保安全性外,並可進行最佳化設計。
圖 7 採SAP2000進行構台主構件結構分析
五、 其他應注意事項
參考內政部營建署頒布之鋼構造建築物鋼結構施工規範,及本公司多年之施工經驗,列出下列幾點:
(1) 鋼結構所使用之材料包含覆工板、型鋼以及螺栓、螺帽與銲接材料等各項材料,均應符合施工規範內容之標準。
(2) 為維護鋼結構安裝之安全性,使得安裝完成後各桿件所產生之應力及變形量能與原設計相符,於安裝時應依施工圖說規定架設。
(3) 施工時的品質要求,包含銲接施工及螺栓組裝,應確實符合施工規範。
(4) 鋼結構之施工安全措施必須依照相關安全衛生法令規章及安裝安全計畫之規定設置,以確保施工安全。
(5) 構台或臨時鋼便橋設計時,應考慮施工之難易及精準度以及日後能否順利拆除。
(6) 現場應嚴格控管機具的載重不得高於設計載重,如因趕工或其他因素使實際的工作載重超出原設計承載重,可能會使某些構件因超受力而發生破壞,進而使整個構台失效。
撰稿人:
郭屈原 全強企業股份有限公司 土木技師
「本文之著作財產權為全強企業股份有限公司所有,若要引用請註明本站出處。」
